EMPRESA 49: Architecture as a Philosophical Manifesto
Yellow Block Developments | Mexico City (2019–2022)
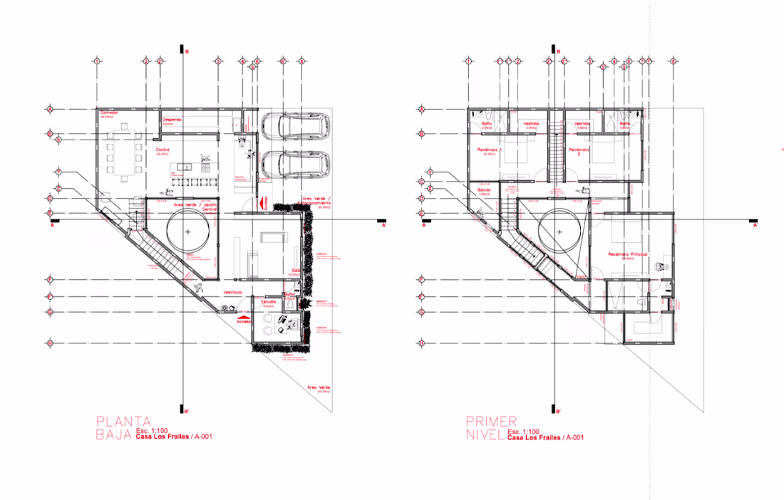
Project Narrative:
Empresa 49 was born from a fundamental question: What happens when real estate development starts from a concept rather than profit per square meter? Under...