Farm House Architectural Plan

Md Aman Ullah Aman

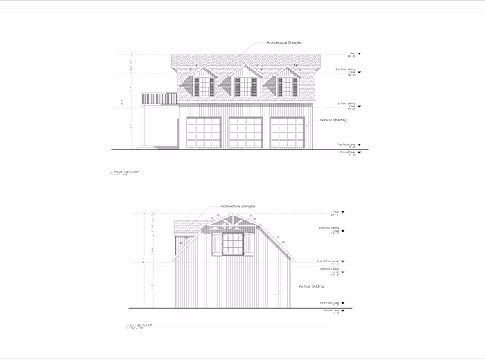
Architectural drawings included:
2D Floor Plan with Dimensions
Elevations (All Four Sides)
Roof Plan with Slop Details
Door and Window Schedule
Area Calculations
Like this project

Posted Aug 24, 2024

I’ve created a comprehensive set of architectural drawings, including a 2D floor plan with dimensions, elevations of all four sides, a roof plan with slope deta

One BedRoom Small Firmhouse
One BedRoom Small Firmhouse
Two Story Building with Garage
Two Story Building with Garage

Join 50k+ companies and 1M+ independents

Contra Logo

© 2025 Contra.Work Inc