One BedRoom Small Firmhouse

Md Aman Ullah Aman

2D Floor Plan with Dimensions
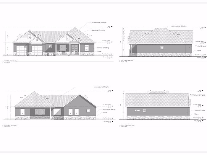
Elevations (All Four Sides)
Roof Plan with Slop Details
Door and Window Schedule
Area Calculations
Like this project

Posted Aug 24, 2024

I’ve created a comprehensive set of architectural drawings, including a 2D floor plan with dimensions, elevations of all four sides, a roof plan with slope deta

Two Story Building with Garage
Two Story Building with Garage
Farm House Architectural Plan
Farm House Architectural Plan

Join 50k+ companies and 1M+ independents

Contra Logo

© 2025 Contra.Work Inc