3D Modeling and Rendering - Residential

Rolando Rodriguez

Modern Residential

Your residence should be formed and function specifically to the way you live; it's a very personal endeavor to design a custom home. This project was designed for a client who wanted a more modern aesthetic. The client had envisioned this house for several years and had expected many custom features to be designed into the home. Once I was able to better understand what the client was looking for, I designed the house they were searching for.
The AutoCAD drawing will be imported into SketchUp, the site plan and building created, later import the model to Twinmotion to add vegetation, vehicle, people, etc., and finished it Adobe Photoshop. Software can vary depending on the project.
To discuss timelines and types of projects, feel free to reach out.
Below are some images for this project.
3D Model and Rendering
3D Model and Rendering
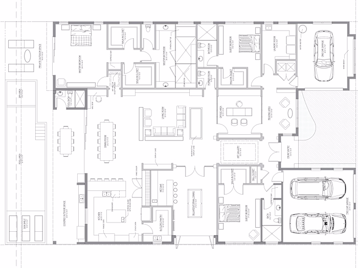
Floor Plan - First Floor
Floor Plan - First Floor
Floor Plan - Second Floor
Floor Plan - Second Floor
Like this project

Posted Aug 6, 2023

Building 3D models and renderings for your residential, commercial, and conceptual projects. This project was done for a client who liked modern house designs.

3D Modeling and Rendering - Multi Family Condominiums/ Mixed Use
3D Modeling and Rendering - Multi Family Condominiums/ Mixed Use
Developer - Residential Floor Plans (2D/3D)
Developer - Residential Floor Plans (2D/3D)
3D Modeling and Rendering - Commercial
3D Modeling and Rendering - Commercial
Developer - Commercial Floor Plans (2D/3D)
Developer - Commercial Floor Plans (2D/3D)

Join 50k+ companies and 1M+ independents

Contra Logo

© 2025 Contra.Work Inc