Ready for work
Inez is ready for their next project!
Manchester, UK
Archicad
Architect
3D Designer
+5
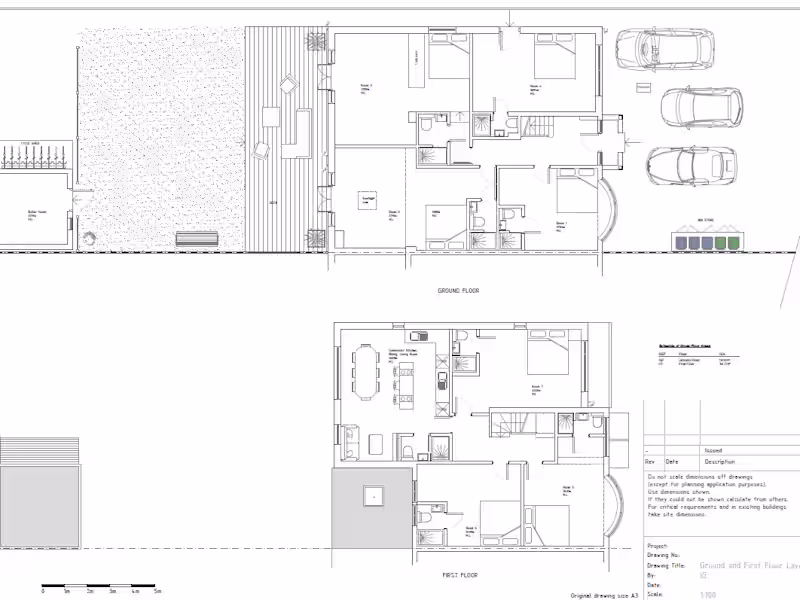
Technical Drawing Details to UK BC standards
Contact for pricing
3D Modeler
+3
FLOOR PLANS INTO DIGITAL FORMAT (DWG AND PDF)