Technical Drawing Details to UK BC standards by Inez GlauberTechnical Drawing Details to UK BC standards by Inez Glauber
Technical Drawing Details to UK BC standards Inez Glauber
Cover image for Technical Drawing Details to UK BC standards
I am a freelance drafting technician with over 7 years of experience of designing and AutoCAD drawing of buildings in the UK for planning permission, building control and construction packages.

What's included

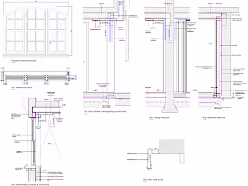
Technical detailing.
Includes structure, existing building, drainage, insulation, waterproofing knowledge for buildings in the UK. Especially the terrace residential homes and rear extension and attic conversions to terraced homes.
Contact for pricing
Tags
Archicad
Autodesk 3ds Max
Blender
SketchUp
SolidWorks
3D Designer
3D Modeler
Architect
Service provided by
Inez Glauber Manchester, UK
Technical Drawing Details to UK BC standards Inez Glauber
Contact for pricing
Tags
Archicad
Autodesk 3ds Max
Blender
SketchUp
SolidWorks
3D Designer
3D Modeler
Architect
Cover image for Technical Drawing Details to UK BC standards
I am a freelance drafting technician with over 7 years of experience of designing and AutoCAD drawing of buildings in the UK for planning permission, building control and construction packages.

What's included

Technical detailing.
Includes structure, existing building, drainage, insulation, waterproofing knowledge for buildings in the UK. Especially the terrace residential homes and rear extension and attic conversions to terraced homes.
Contact for pricing