Aaron Bernard's Work | ContraWork by Aaron Bernard
Aaron Bernard
pro

Aaron Bernard

Permit-ready plans for homes, ADUs, remodels

New to Contra

Aaron is ready for their next project!

Cover image for 3D residential model created in
3D residential model created in SketchUp showcasing modern architectural design, outdoor living spaces, and detailed exterior elements. The model focuses on clean geometry, material application, and spatial layout to clearly visualize the design and overall experience of the home.
1
19
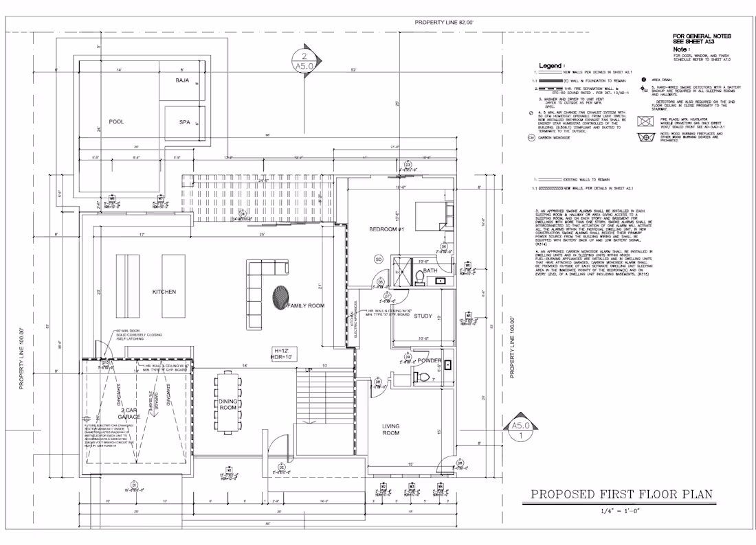
Cover image for Full architectural drawing set including
Full architectural drawing set including floor plans, sections, and elevations created for a residential project. Drawings were developed with attention to detail, accurate dimensions, and clear layout to support construction and permit submittals.
1
22
Cover image for Architectural drawings including floor plans,
Architectural drawings including floor plans, sections, and elevations developed from residential design plans. These drawings were created with a focus on accuracy, layout clarity, and proper detailing to support construction and permitting.
1
25
Cover image for Complete residential architectural project including
Complete residential architectural project including 3D models and full plan set. This work includes exterior 3D visualizations created in SketchUp along with detailed drawings such as floor plans, grading plan, and roof plan. All models and drawings were developed from architectural plans with a focus on accuracy, clarity, and presentation.
1
30