BIM for apartment building in NY by Pilip MelnikauBIM for apartment building in NY by Pilip Melnikau

BIM for apartment building in NY

Pilip Melnikau

Pilip Melnikau

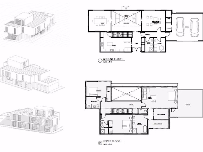
I was engaged by a client to transform their building plans into a sophisticated Building Information Model (BIM). Leveraging Revit, I developed a high-detail BIM model that incorporates all structural elements and key components necessary for accurate calculations and specifications.
This BIM model serves as a vital tool for enhanced design analysis, streamlined project planning, and precise execution. It supports improved collaboration and ensures all project aspects are thoroughly documented and integrated, paving the way for efficient project management and future scalability.
Like this project

Posted Aug 12, 2024

I was engaged by a client to transform their building plans into a sophisticated Building Information Model (BIM). Leveraging Revit, I developed a high-detail 3