Engineering Schematics Conversion to Figma by Taylor FredricksonEngineering Schematics Conversion to Figma by Taylor Fredrickson

Engineering Schematics Conversion to Figma

Taylor Fredrickson

Taylor Fredrickson

Verified

the problem.

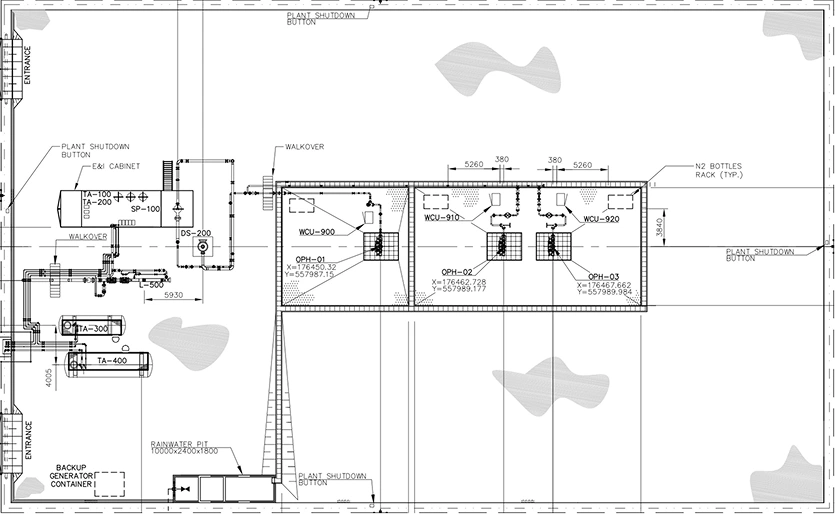
Engineering schematics and architectural drawings for pipeline and drilling operations are notoriously difficult to read: dense, technical, and inaccessible to anyone outside a narrow circle of specialists. This creates real communication problems across teams when non-technical stakeholders need to understand layouts, flows, or site plans.
The original schematic
The original schematic

the solution.

Convert the existing schematics into clean, to-scale Figma files that anyone in the organization could open, navigate, and actually understand. Maintaining precise scale was critical — these weren't only illustrative diagrams, they needed to accurately represent real-world dimensions and relationships.

my role.

As the sole designer on the project, I was responsible for interpreting the source engineering documents, building a library of reusable components to ensure consistency across files, and delivering organized Figma files that could be updated and extended over time.
 "Rig Floor" component for easy editing and consistent scale.
"Rig Floor" component for easy editing and consistent scale.

the outcome.

While this was far from the work I usually do it was regardless an interesting project. The most difficult part was learning how to create and maintain a scale, especially to this size and then creating a multitude of components that could be used at scale across files: containers, pre-fab buildings, etc./. We aren't talking about pixels to poster or billboard size but large structures and areas the size of buildings.
Like this project

Posted Mar 13, 2026

Converted engineering schematics into scalable Figma files for better clarity.

Likes

0

Views

2

Timeline

Apr 3, 2025 - Ongoing

Clients

rescu energie