Residential House Design by Eric DurioResidential House Design by Eric Durio

Residential House Design

Eric Durio

Eric Durio

Residential House Design

Like this project

Posted Aug 20, 2025

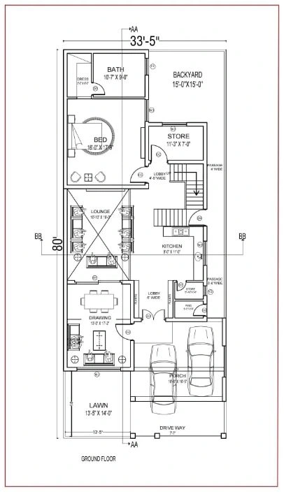
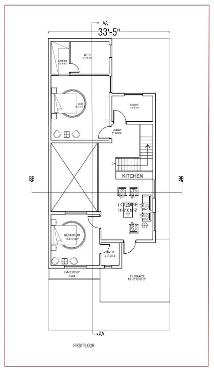
Residential House Design Includes: 01- Ground Floor Plan 02- First Floor Plan