Abdur Rahim's Work | ContraWork by Abdur Rahim
Abdur Rahim

Abdur Rahim

Quantity take-offs that make your bids bulletproof.

New to Contra

Abdur is ready for their next project!

Cover image for Expert NYC Concrete Quantity Take-Off with Bluebeam Revu
Quantity Take-Off | NYC Structural Concrete, 100% CD Completed full structural concrete quantity take-off for a NYC multi-storey building using Bluebeam Revu. Measured concrete volumes floor-by-floor across 30 structural drawings at 100% Construction Documents — covering foundation, 1st and 2nd floor framing, roof, and bulkhead plans. Quantities included concrete slabs (8" & 9.5" thick), shear walls (SW1–SW3), CMU parapet, and bulkhead elements, totalling approximately 250+ CY of concrete across all levels. #quantitytakeoff #structural #concrete #BluebeamRevu #NYCconstruction
0
8
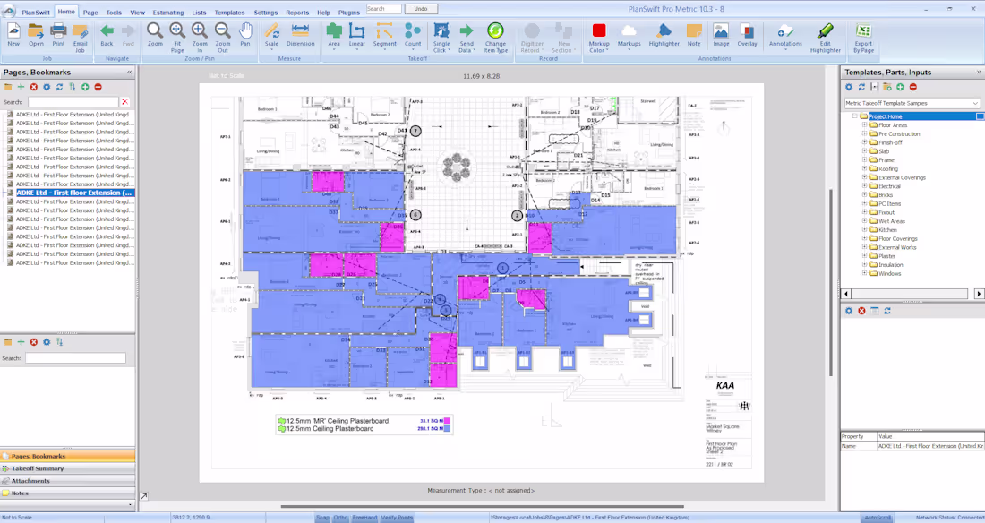
Cover image for Quantity Take-Off | ADKE Ltd
Quantity Take-Off | ADKE Ltd — First Floor Extension, UK Completed internal finishes quantity take-off for a UK residential first floor extension project using PlanSwift Pro Metric. Measured floor finishes across two plan sheets including timber floors (592 SQM), tile floors (78 SQM), paver floors (137 SQM), timber skirting (658 M), and ceiling plasterboard including moisture-resistant board (627 SQM total) — all itemized from architectural floor plans for direct BOQ input. #quantitytakeoff #internalfinishes #PlanSwift #UKconstruction #residentialextension
0
7
Cover image for Expert Quantity Take-Off for NYC Mixed-Use Structural Project
Quantity Take-Off | NYC Mixed-Use Structural Project Performed structural quantity take-offs for a NYC mixed-use development using Bluebeam Revu. Measured and calculated rebar schedules (10J, 12J at various spacings), steel beam sections (W6×25 through W12×40), slab thicknesses, HSS columns, CMU walls, and concrete elements from 50% Construction Documents across 22 structural drawing sheets. #quantitytakeoff #structural #BluebeamRevu #NYCconstruction #construction
0
6
Cover image for Performed detailed quantity take-offs for
Performed detailed quantity take-offs for a UK commercial residential development using PlanSwift Pro. Measured and calculated wall areas, brickwork, slate wall cladding, roof lights, exterior trims, and drainage elements from architectural floor plans and elevations. Deliverables included itemized measurements ready for BOQ preparation and tender pricing.
0
9