Expert Quantity Take-Off for UK Residential Extension ProjectExpert Quantity Take-Off for UK Residential Extension Project
The network for creativity
Join 1.25M professional creatives like you
Connect with clients, get discovered, and run your business 100% commission-free
Creatives on Contra have earned over $150M and we are just getting started
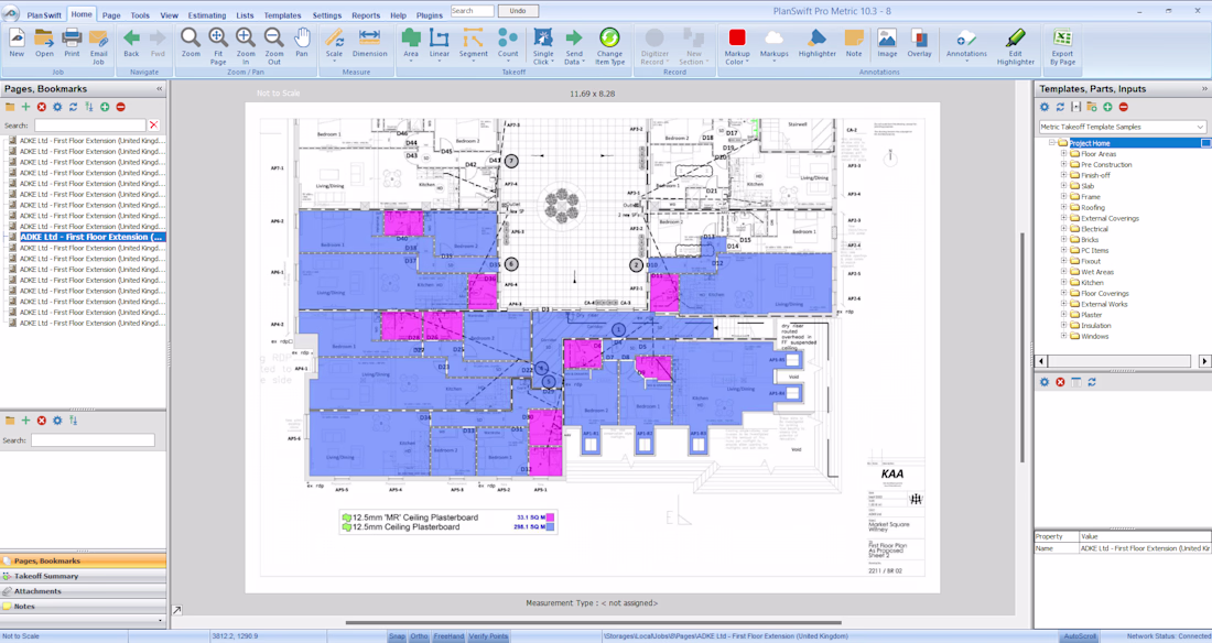
Quantity Take-Off | ADKE Ltd — First Floor Extension, UK
Completed internal finishes quantity take-off for a UK residential first floor extension project using PlanSwift Pro Metric. Measured floor finishes across two plan sheets including timber floors (592 SQM), tile floors (78 SQM), paver floors (137 SQM), timber skirting (658 M), and ceiling plasterboard including moisture-resistant board (627 SQM total) — all itemized from architectural floor plans for direct BOQ input.
#quantitytakeoff #internalfinishes #PlanSwift #UKconstruction #residentialextension
Post image
Post image
Post image
Post image
Back to feed
The network for creativity
Join 1.25M professional creatives like you
Connect with clients, get discovered, and run your business 100% commission-free
Creatives on Contra have earned over $150M and we are just getting started