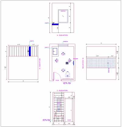
Automated Building Design Project

Shoaib Khan

Experienced Auto CAD Drafter Designer. Experience in Architectural, Electrical & Smart Home System. Residential and commercial designing of lighting control system layout Automation Wired & Wireless Networking Plan, Telecom Layout Plan, CCTV Camera Layout Plan, Home Security & Door Lock Layout Plan, Audio Video layout design for home Cinema, media room. Electrical layout & wiring plan details, schematics and single line diagrams.
Like this project

Posted Apr 22, 2024

Designed an automated system for generating building designs, streamlining the architecture process and increasing efficiency.

Control4 Programing & Designing.
Control4 Programing & Designing.
Lutron R3 Programming & Designing
Lutron R3 Programming & Designing
I will make Lutron R3 & Control4 Programming and Designing.
I will make Lutron R3 & Control4 Programming and Designing.
Design Lighting Control System Lutron Based. Program all Sma...
Design Lighting Control System Lutron Based. Program all Sma...

Join 50k+ companies and 1M+ independents

Contra Logo

© 2025 Contra.Work Inc