Sample Drawings by Michael SmithSample Drawings by Michael Smith

Sample Drawings

Michael Smith

Michael Smith

Even on seemingly simple projects, our design strength is evident in the quality and precision of our architectural and structural drawings. These plans are the backbone of successful projects, ensuring that every detail is considered and executed with accuracy. We focus on clear, comprehensive documentation that guides the entire construction process.
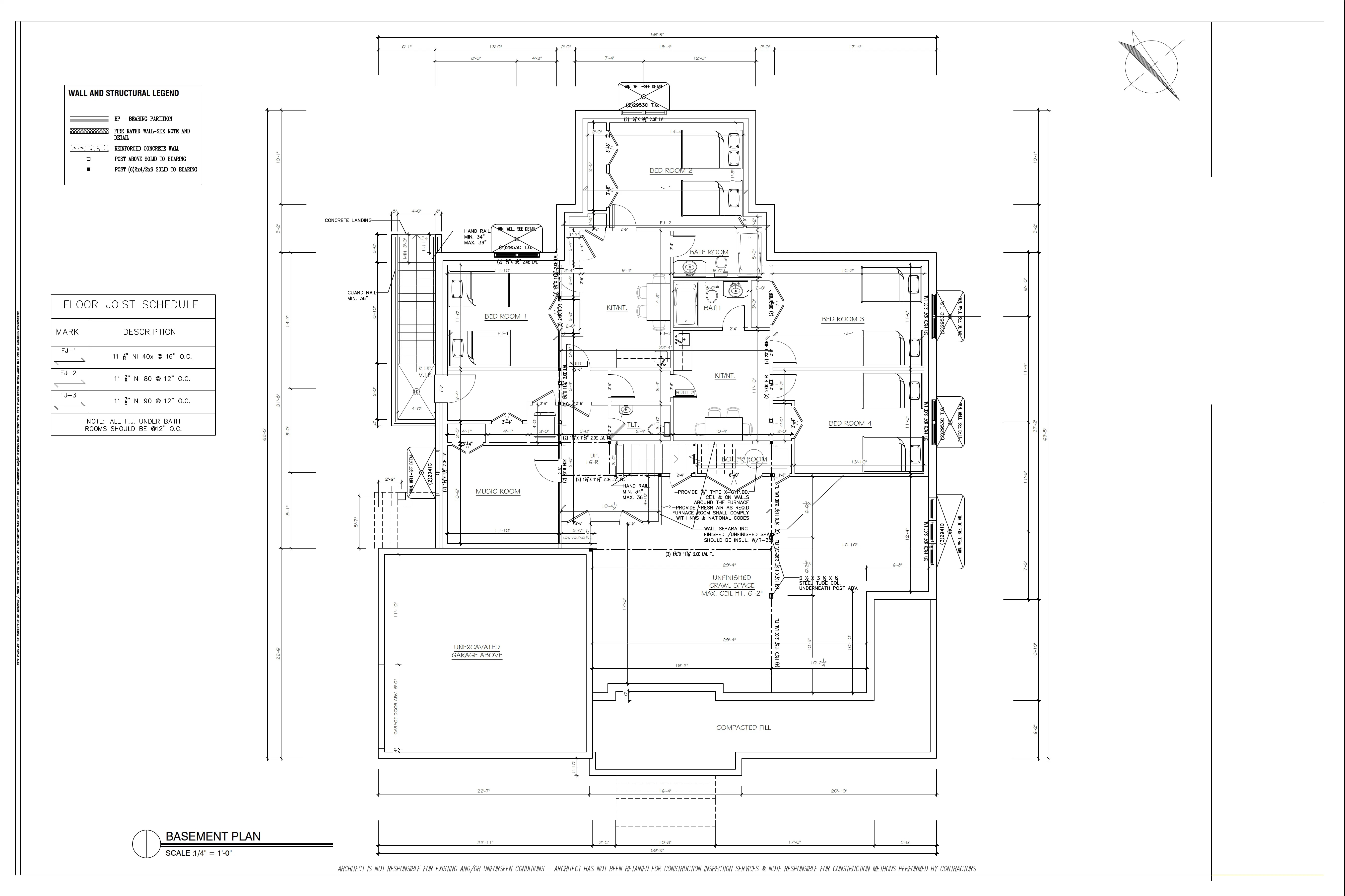
This image above displays a basement plan, which shows our meticulous approach to the foundation and lower level layout. Every detail is carefully drafted, from the room divisions to the structural elements and joist schedule, to ensure a solid and functional foundation. If you'd like to see more details of this project, I can provide the full set of plans via direct message.
This next screenshot highlights the detailed cross-sections of a building's walls. These drawings are crucial for showing the construction team how different materials and components interact, ensuring a structurally sound and well-insulated envelope. The sections detail everything from the foundation to the roof, demonstrating our thorough understanding of building science and structural integrity. If you'd like to see more details of this project, I can provide the full set of plans via direct message.
Lastly, this screenshot shows a front elevation and a corresponding section view. This type of drawing helps visualize the exterior of the proposed design and how it relates to the existing structure. It showcases our ability to design facades that are not only aesthetically pleasing but also structurally viable. The drawing clearly indicates key structural beams and their placement, demonstrating a thoughtful and integrated design approach. If you'd like to see more details of this project, I can provide the full set of plans via direct message.
Like this project

Posted Aug 25, 2025

Screenshot of architectural and structural drawings for construction. You can DM to see the drawings in more details.