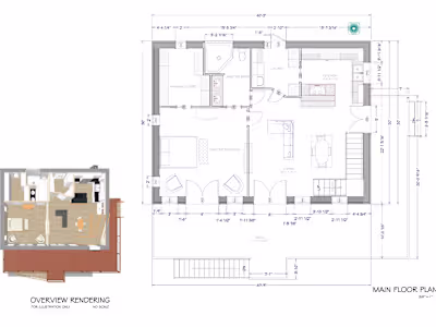
PDF to Revit Conversion and 3D Rendering by Asnake WoldePDF to Revit Conversion and 3D Rendering by Asnake Wolde

PDF to Revit Conversion and 3D Rendering

Asnake Wolde

Asnake Wolde

PDF to Revit Conversion and 3D Rendering
Like this project

Posted Jun 26, 2024

PDF to Revit Conversion and 3D Rendering