Apartment Building Technical Drawings by Mohammed Al-HaddadApartment Building Technical Drawings by Mohammed Al-Haddad

Apartment Building Technical Drawings

Mohammed Al-Haddad

Mohammed Al-Haddad

Apartment Building Technical Drawings Project
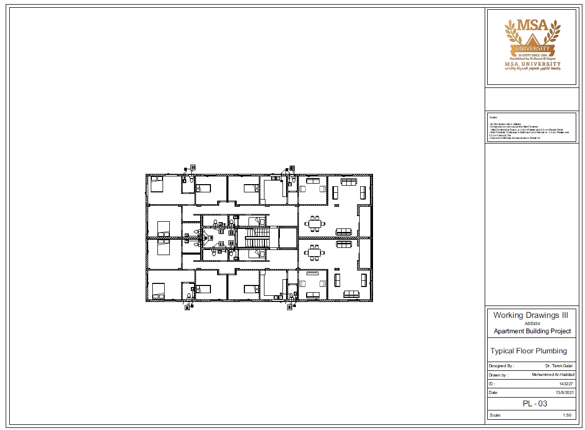
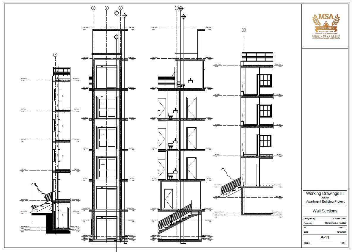
Includes Architectural, Plumbing and Electrical Drawings and Technical Details
Like this project

Posted Jun 2, 2023

Architectural , Electrical and Plumbing construction plans and Technical Details

Likes

0

Views

18