Hotel Residence - Design Development by Formitopia .Hotel Residence - Design Development by Formitopia .

Hotel Residence - Design Development

Formitopia .

Formitopia .

This project explores the design development of a double-height lobby for a luxury hotel residence. The brief called for a spatial experience that communicates both intimacy and grandeur, using form, materiality, and light as primary design drivers.
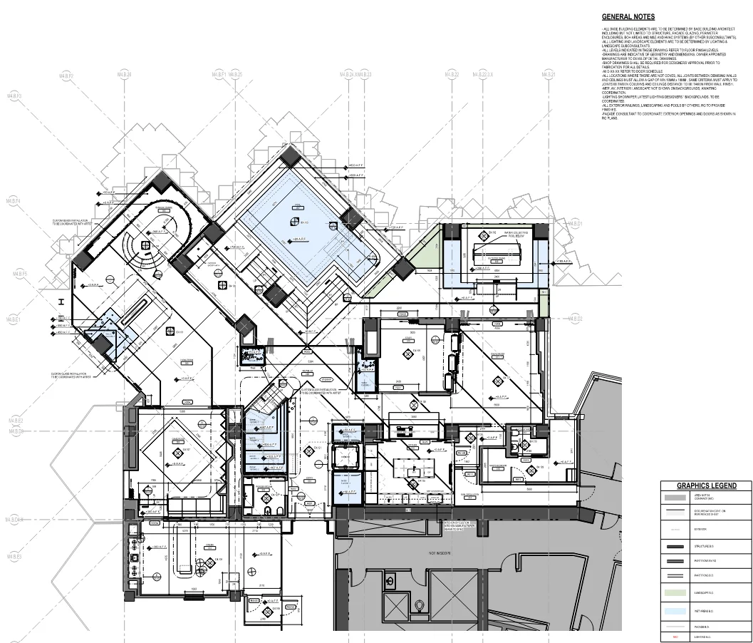
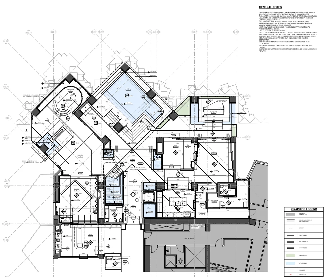
Floor Plan
Floor Plan
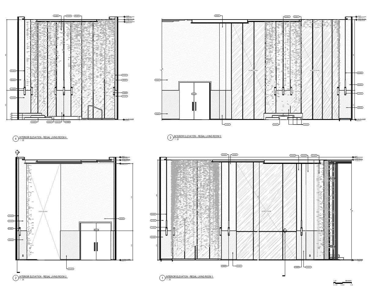
A sculptural stair anchors the space, serving as both a circulation core and a visual focal point. Vertical lighting elements descend from the ceiling in a rhythmic cascade, enhancing the sense of scale and movement. The palette integrates warm stone, brushed metal, and natural wood tones to achieve a refined yet tactile atmosphere.
Finish Plan
Finish Plan
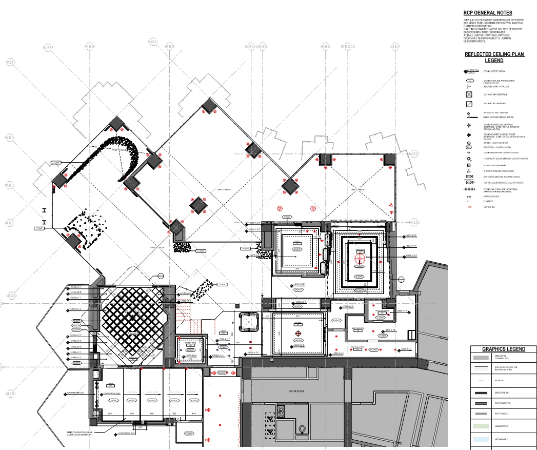
RCP
RCP
Furniture Pla
Furniture Pla
Large-format glazing brings the exterior landscape into dialogue with the interior, while strategically positioned greenery softens the architectural expression and introduces a biophilic balance. The overall composition prioritizes flow, transparency, and sensory calm — setting a tone of understated luxury that defines the identity of the hotel brand.
Like this project

Posted Oct 27, 2025

Refined double-height hotel lobby featuring sculptural stair, cascading lights, and natural materials that balance grandeur with calm sophistication.