Pin on RESIDENTIAL by Ripul DhimanPin on RESIDENTIAL by Ripul Dhiman

Pin on RESIDENTIAL

Ripul Dhiman

Ripul Dhiman

Like this project

Posted Mar 2, 2024

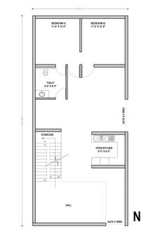
THIS IS THE RESIDENTIAL BASIC PLAN I DESIGNED FOR A CLIENT.