Casa INSTA VID Social Housing Design

Sebastian

Sebastian Rios Castro

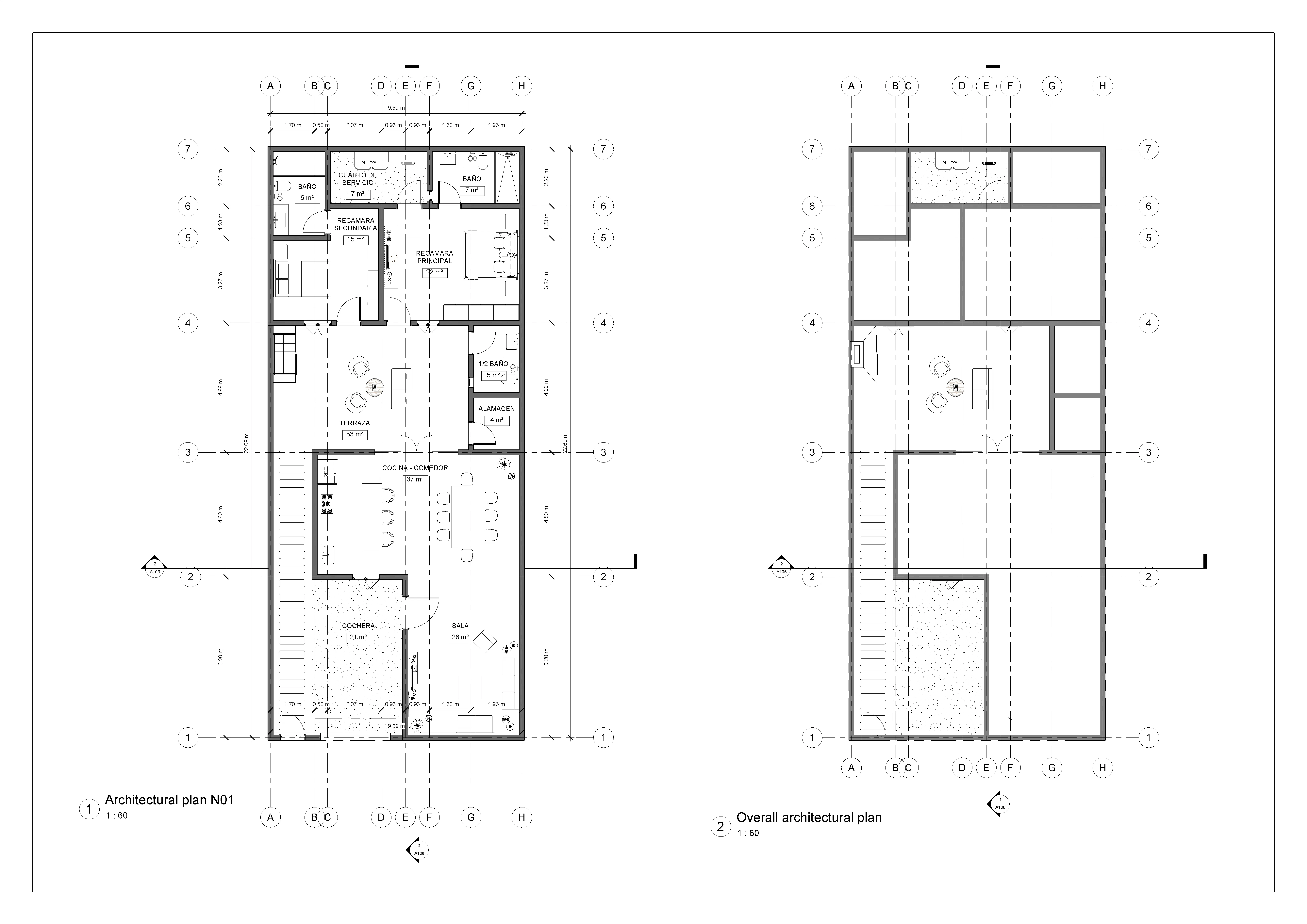
Casa INSTA VID was a social housing project designed to provide privacy for its residents along with a social area separated from the private spaces. Each bedroom includes its own bathroom, and all areas are connected by a terrace that encourages social interaction and enjoyment of nature, all arranged on a single floor.
Like this project

Posted Sep 28, 2025

Is a single-story social housing project designed for privacy and community, with bedrooms featuring private bathrooms and a shared terrace..