Complete residential architectural project including by Aaron BernardComplete residential architectural project including by Aaron Bernard

Complete residential architectural project including

Aaron Bernard

Aaron Bernard

Complete residential architectural project including 3D models and full plan set.
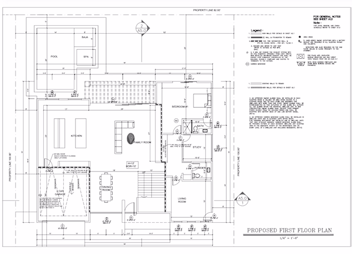
This work includes exterior 3D visualizations created in SketchUp along with detailed drawings such as floor plans, grading plan, and roof plan. All models and drawings were developed from architectural plans with a focus on accuracy, clarity, and presentation.
Like this project

Posted Mar 24, 2026

Complete residential architectural project including 3D models and full plan set. This work includes exterior 3D visualizations created in SketchUp along wit...