NYC Structural Design and Analysis Project by Edward RobisonNYC Structural Design and Analysis Project by Edward Robison

NYC Structural Design and Analysis Project

Edward Robison

Edward Robison

This project scope included:
Full structural analysis for gravity and lateral loads (Seismic/Wind).
Design of steel decking, beam-to-column connections, and shear wall details.
Managed the full permitting process, leveraging our multi-state licensure to ensure NYC code compliance and rapid approval.
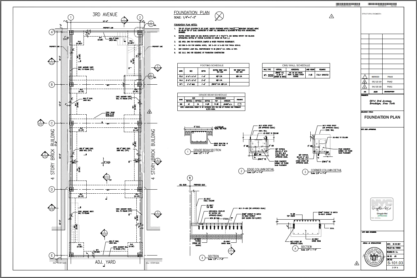
Provides the layout for new and existing footings, foundation walls, and grade beams. Includes the Footing Schedule and notes on soil bearing capacity (2 TON/FT²), and requirements for new concrete liner walls.
Foundation Sections and Details
Foundation Sections and Details
Features detailed cross-sectional and elevation views of complex foundation elements, tie-ins to existing masonry party walls , and underpinning/shoring precautions for adjacent structures.
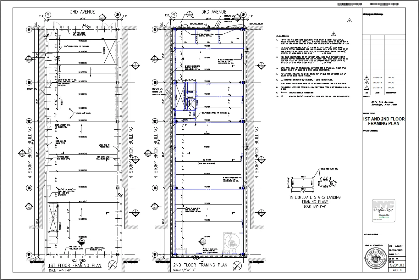
1st and 2nd Floor Framing Plan
1st and 2nd Floor Framing Plan
Shows the primary steel beam and girder layout for the floor levels. Includes notes on composite metal deck specifications and locations requiring shoring during construction.
Roof Framing Plan
Roof Framing Plan
Details the structural framing for the roof level. Includes specifications for the lightweight concrete topping on the metal deck and may include details for parapet walls and mechanical unit supports.
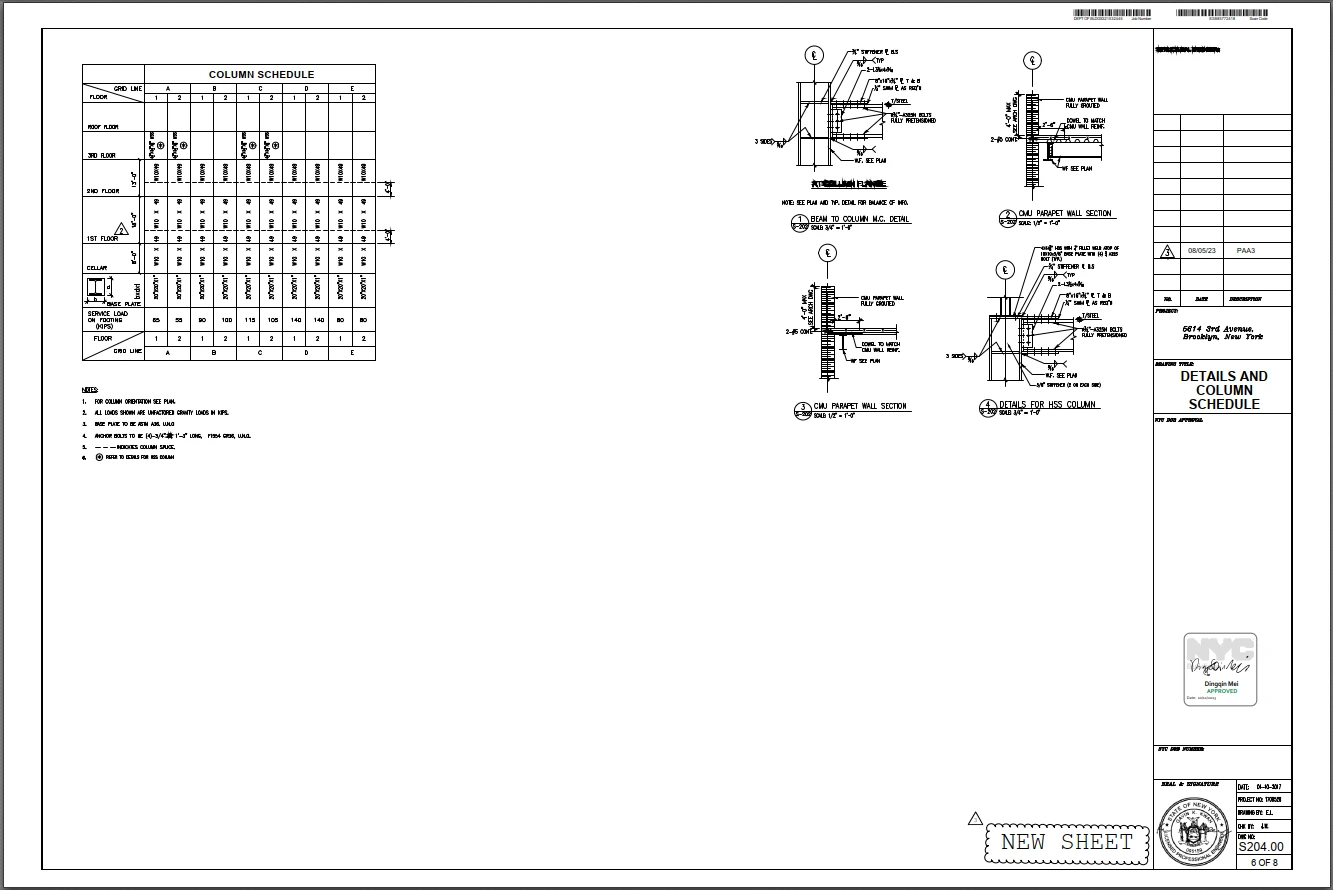
Column Schedule and Base Details
Column Schedule and Base Details
Provides the Column Schedule and detailed sections for column bases , including anchor bolt specifications and methods for field-setting base plates and grout.
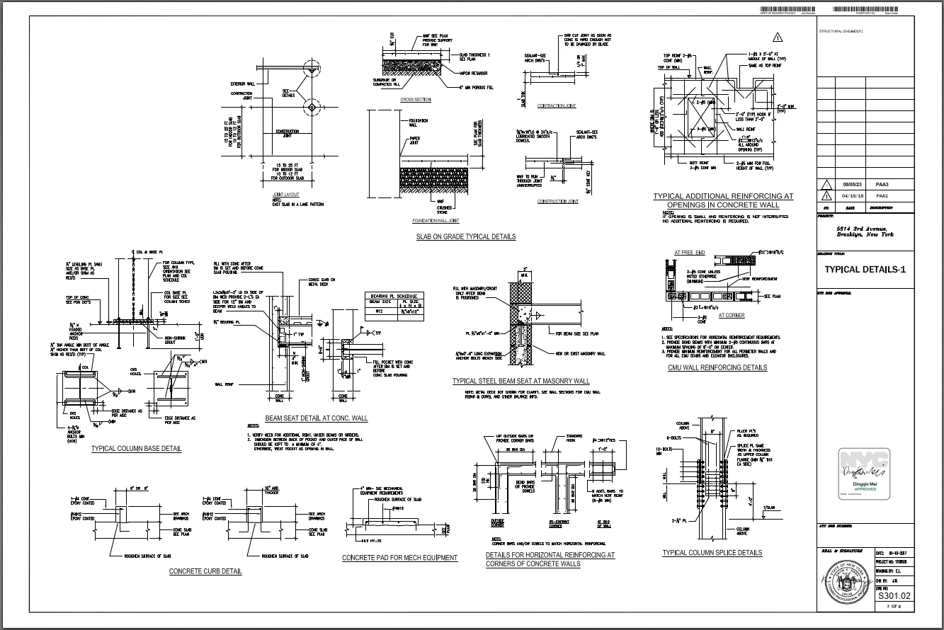
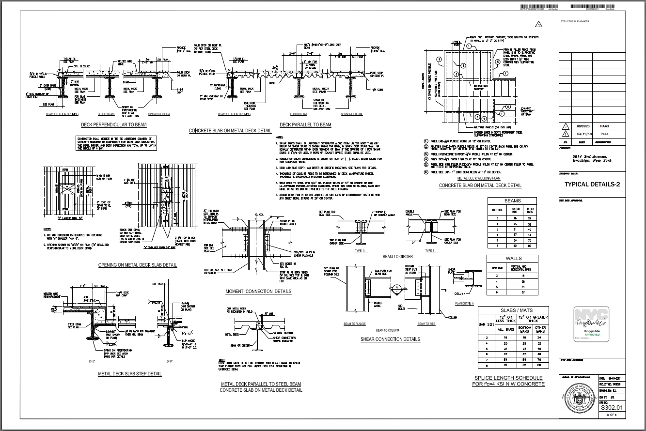
Typical Structural Details
Typical Structural Details
General construction details for the project, such as Concrete Wall Reinforcement at Openings , Steel Beam Seat at Masonry Wall , Concrete Curb details, and various reinforcing methods.
Connection Details
Connection Details
The final sheet typically details specialized connections, including Moment Connection Details (Beam-to-Column) and Shear Connection Details (Beam-to-Girder), and complex composite slab/deck termination details.
It demonstrates our capacity to handle complex structural designs in major urban jurisdictions.
Connect with us to check the details of this experience and see how this expertise aligns with your project's unique requirements!
Like this project

Posted Dec 3, 2025

Completed structural analysis and design for construction in NYC.