IG LIVING ROOM by Christina PhensyIG LIVING ROOM by Christina Phensy

IG LIVING ROOM

Christina Phensy

Christina Phensy

INSTAGRAM x SUN-NY SIDE UP 
creative direction+set design
Like this project

Posted Oct 4, 2025

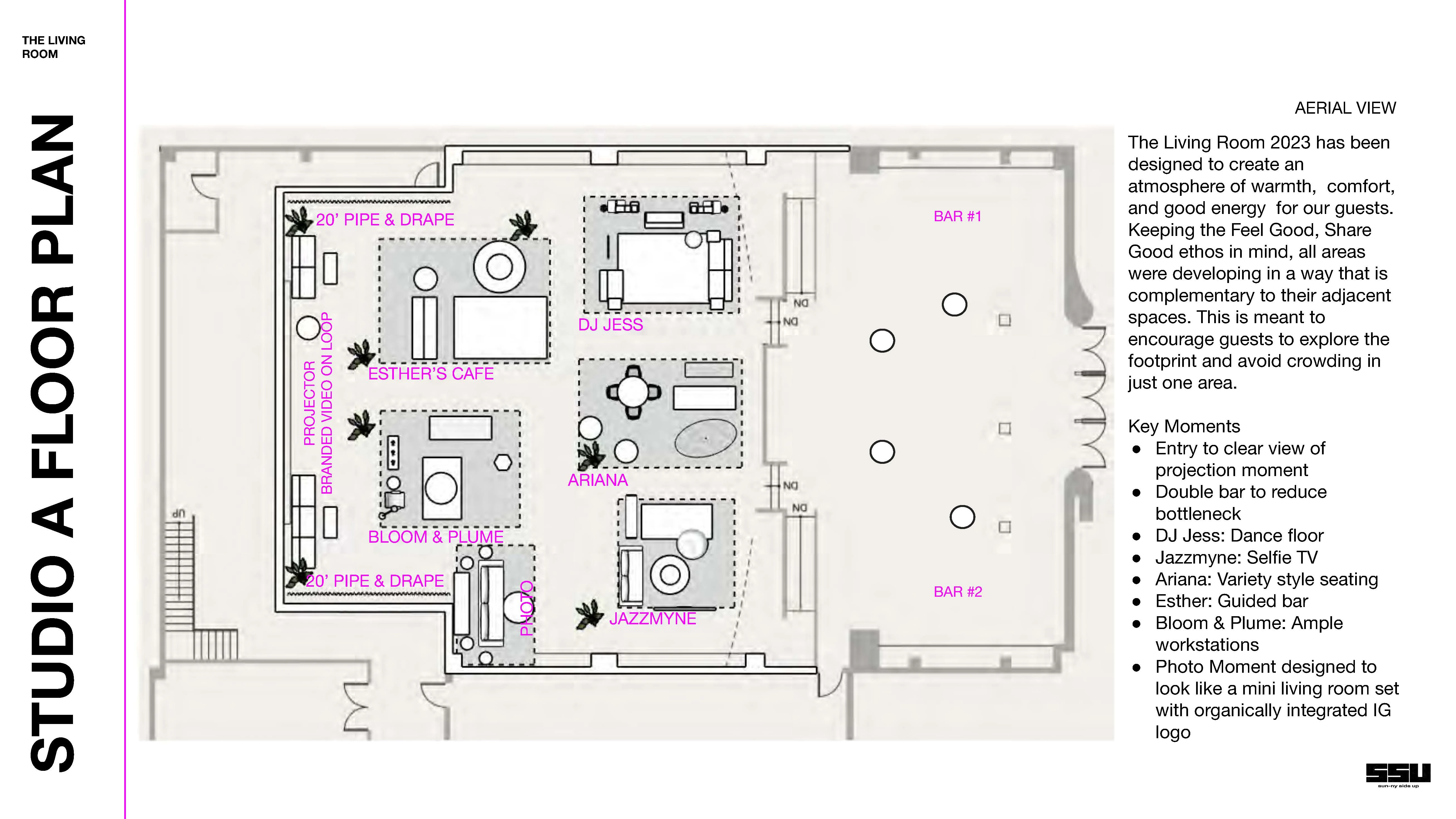
As a creative director assisting SUN-NY SIDE UP, I lead the visual and spatial design of this immersive experience for INSTAGRAM.

Likes

1

Views

7

Timeline

Oct 2, 2023 - Oct 14, 2023