Design Development: Mixed Use Commercial Space by Vince ApuzzoDesign Development: Mixed Use Commercial Space by Vince Apuzzo

Design Development: Mixed Use Commercial Space

Vince Apuzzo

Vince Apuzzo

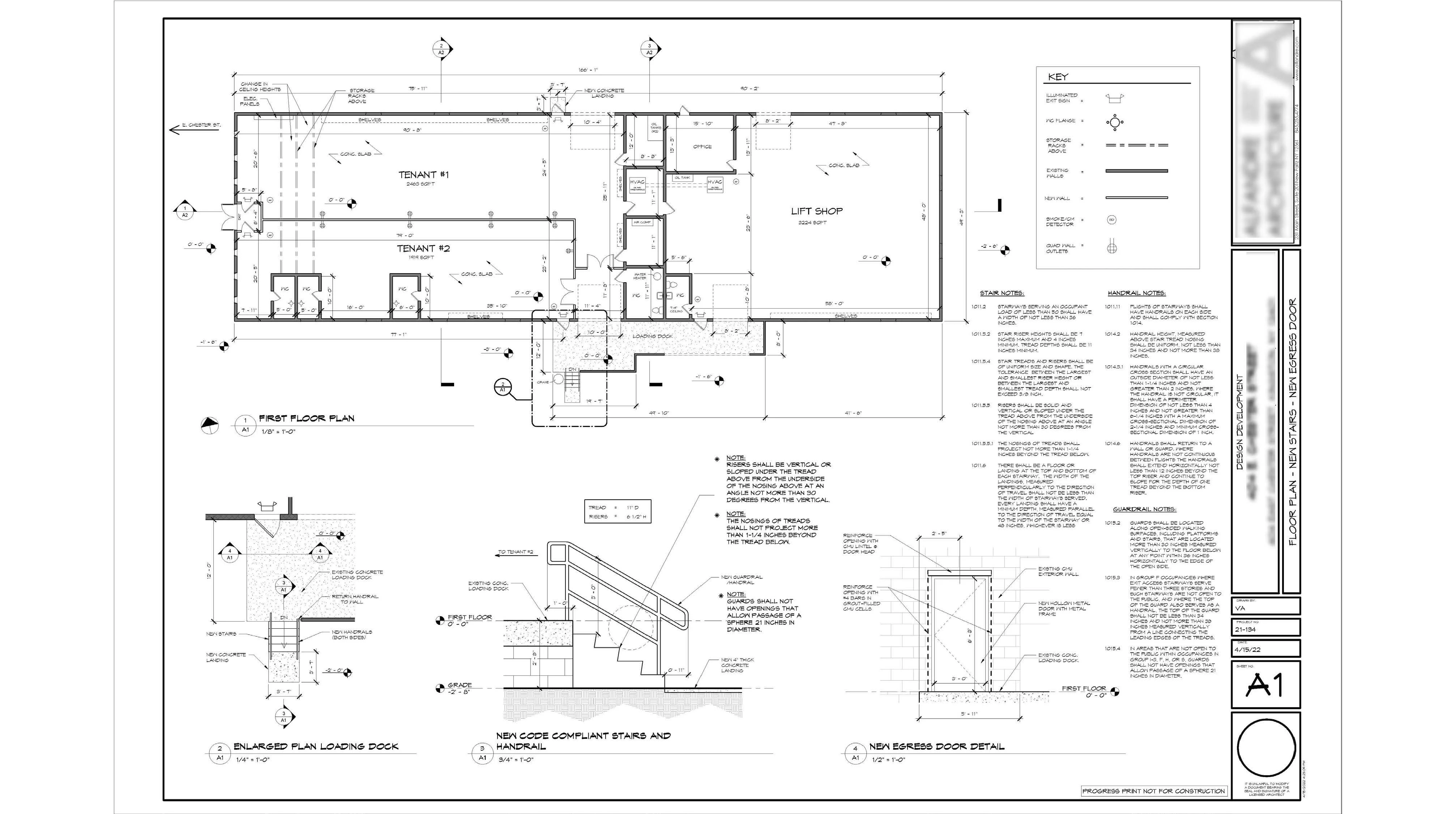
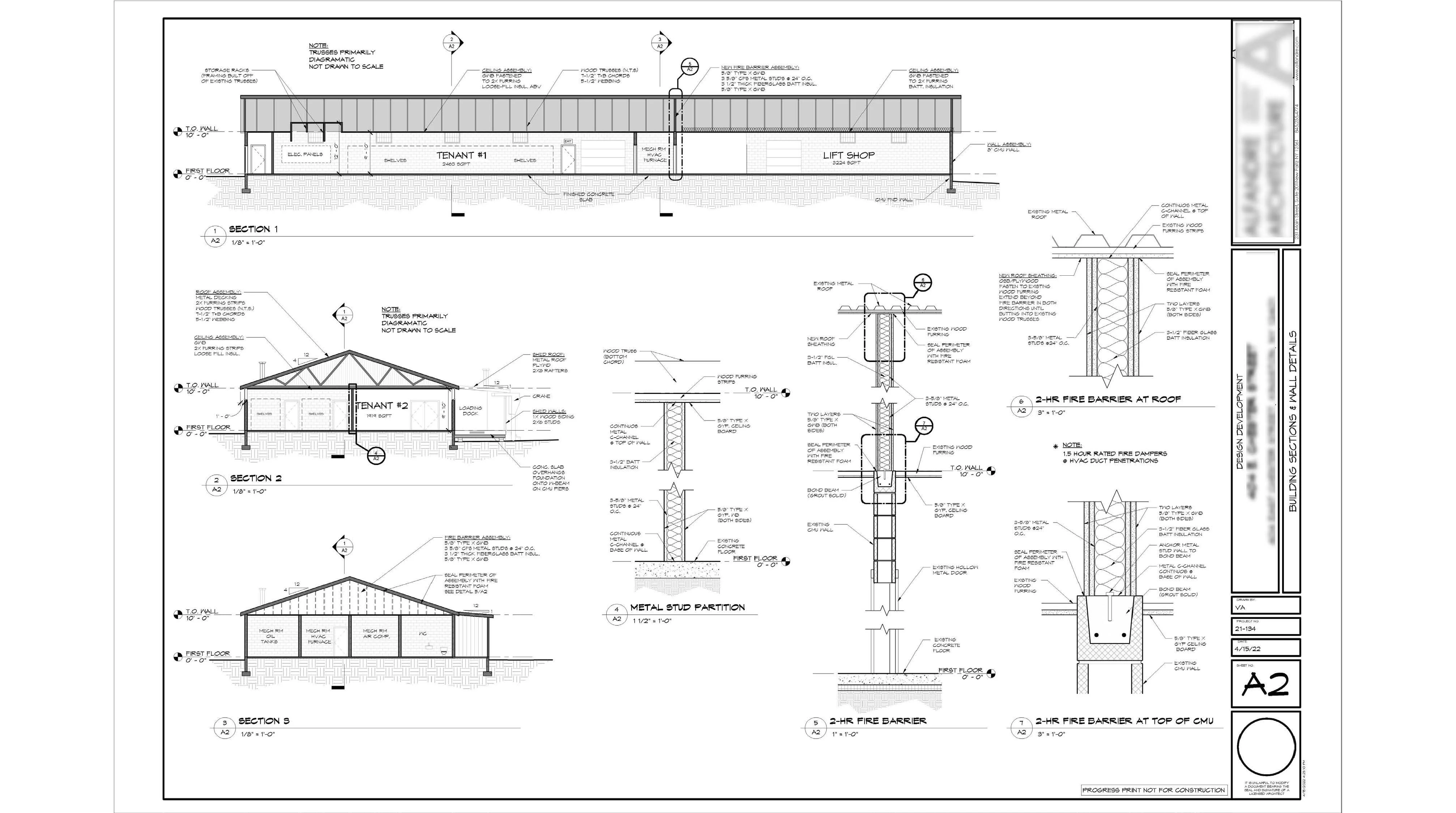
2D CAD drawings completed to include amendments to existing commercial building for permit/approval.
Like this project

Posted Jul 7, 2023

Produced detailed 2D architectural drawings to guide design process of a mixed-use commercial space.