DETAILED PLANS | MATERIAL CALCULATION - BATHROOM by Carla GarridoDETAILED PLANS | MATERIAL CALCULATION - BATHROOM by Carla Garrido

DETAILED PLANS | MATERIAL CALCULATION - BATHROOM

Carla Garrido

Carla Garrido

Like this project

Posted May 24, 2024

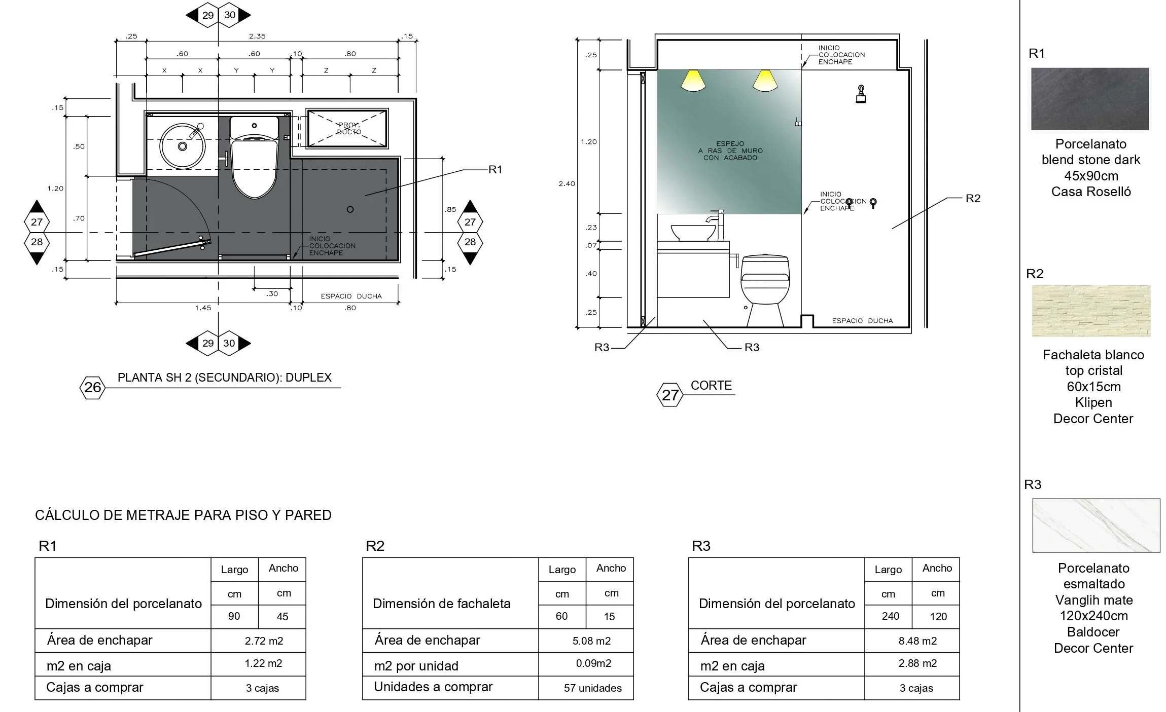
Detail plan and calculation for bathroom construction.