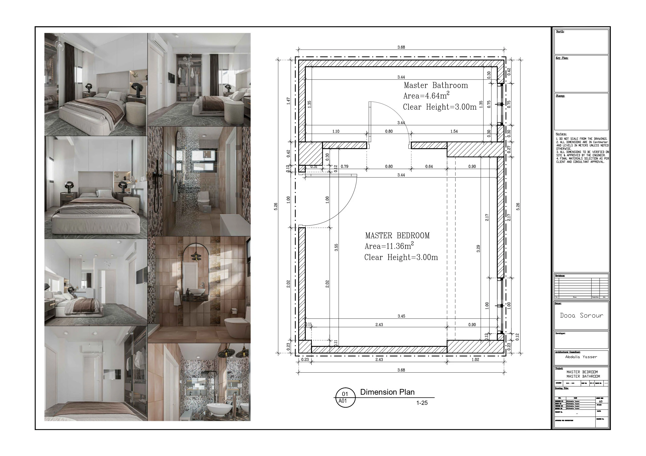
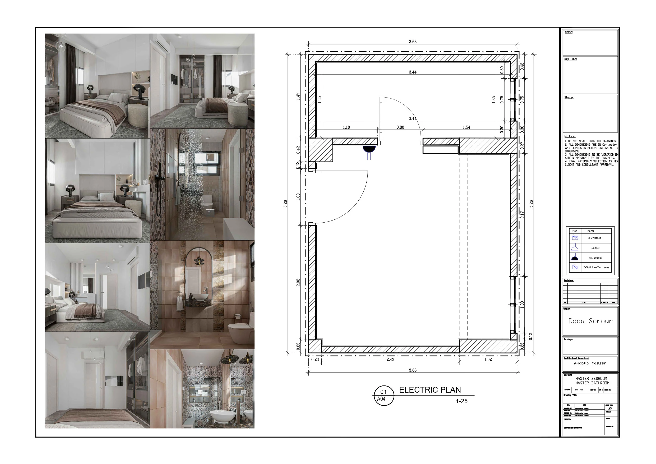
Abdalla Yasser
Architect & Interior Designer
AutoCAD
Autodesk 3ds Max
Posted Dec 2, 2024
Architecture, Interior Design, Autodesk 3ds Max, Vray, chaos vantage , AutoDesk AutoCAD, Adobe Photoshop
0
Expert 3D Render & Interior Design Solutions