Rakesh Sasmal
Project Manager
3D Modeler
AutoCAD
Revit
Posted Dec 20, 2023
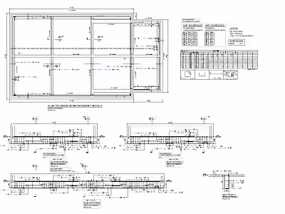
Steel Modeling & Shop Draawings
0
6
Quality Precast Rebar and Steel Modeling