CivilMix 3D designs
3D Designer
Architect & Interior Designer
3D Renderer
AutoCAD
Revit
Posted Dec 25, 2023
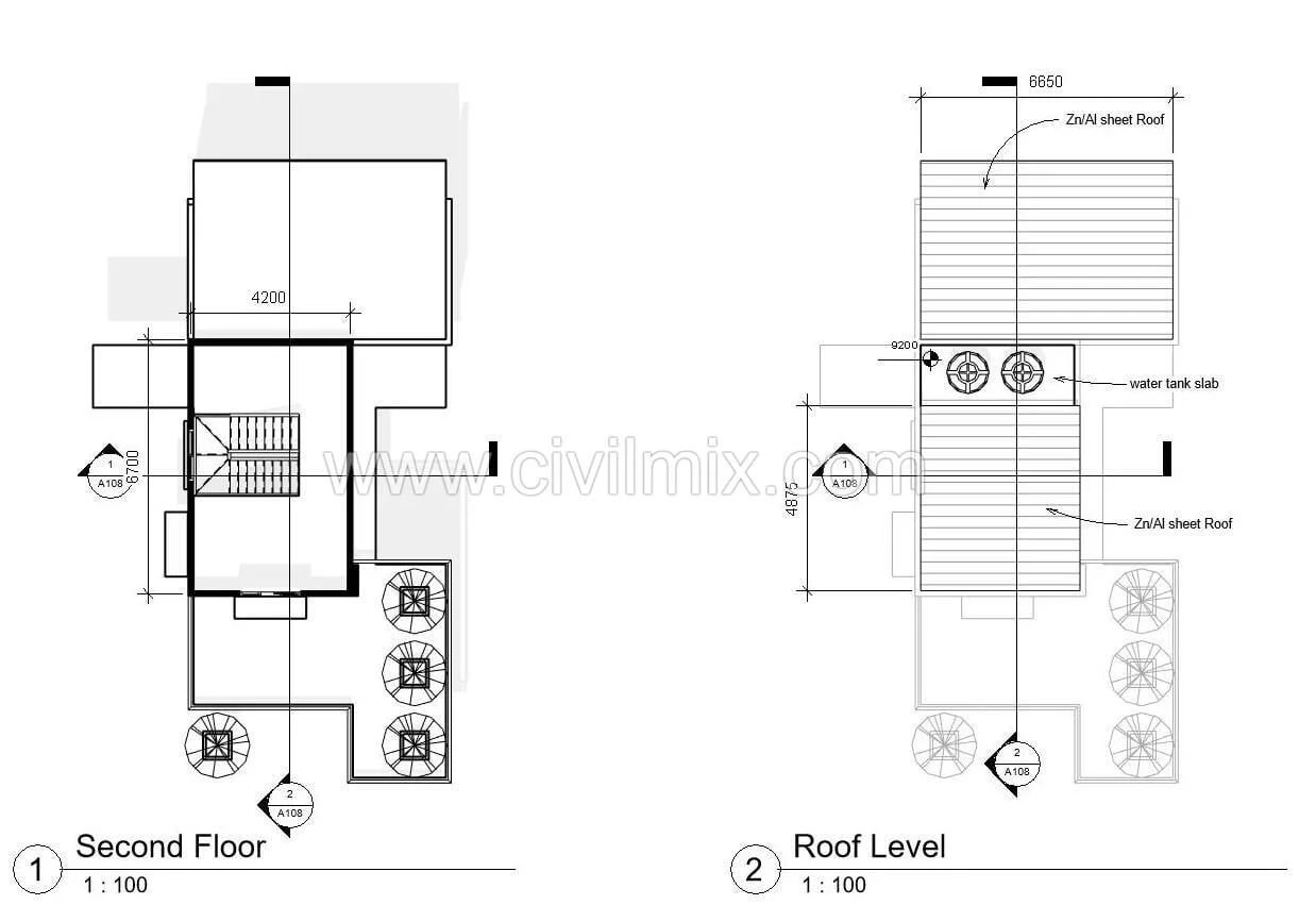
Unlock the potential of your sketches with our Sketch to 2D Plans service. Seamlessly translating your concepts into detailed 2D plans, we bring your ideas to l
0
22
Experienced 3D Modeling and Rendering Specialist