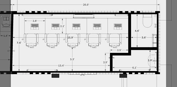
INTERIOR DESIGN OF CONTAINER OFFICE AT OPIC ESTATE

Chinedum John

Chinedum John

INTERIOR DESIGN OF CONTAINER OFFICE AT OPIC ESTATE
Comprehensive Interior Design Proposal for a Modern Container Office Located at OPIC Estate
Like this project

Posted May 5, 2025

Detailed Interior Design Proposal for a Modern Container Office at OPIC Estate.