
ARCHITECTURAL PERMIT SET
Starting at
$
35
/hrAbout this service
Summary
What's included
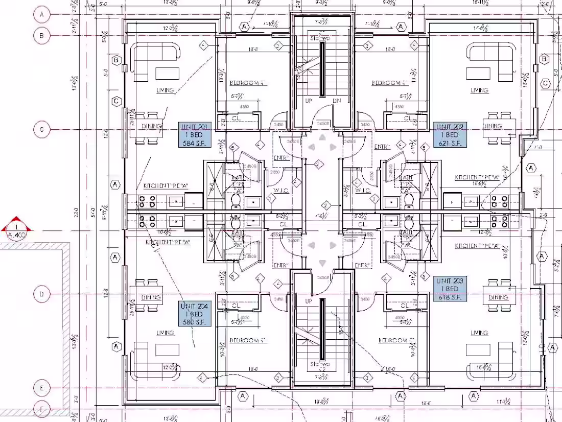
ARCHITECTURAL PERMIT SET
Full Architectural permit set consisting of: -Cover -Site plans -Building floor plans -Enlarged unit plans -Reflected ceiling plans -Building elevations -Building sections and section details -Window & Door schedules and details -Wall types -3D model, renderings and animations
ARCHITECTURAL SPECIAL PERMIT/ SITE PLAN REVIEW SET
-Cover -Site plans -Building floor plans -Building elevations -3D model, renderings and animations
Example projects
Skills and tools
3D Designer
Architect
3D Modeler

Archicad

AutoCAD

Lumion
Industries