
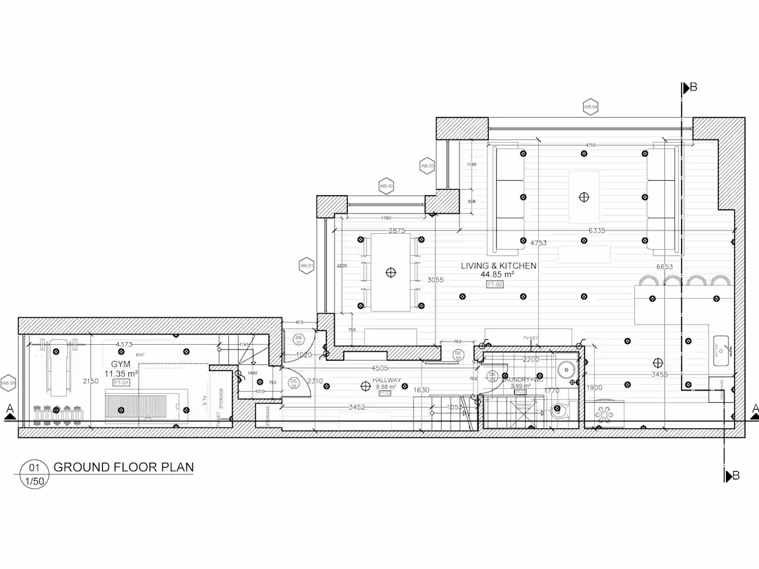
Permit Drawing Set
Contact for pricing
About this service
Summary
What's included
2D Drawing Set
I prepare and deliver a set of drawings according to the requirements of the council in your country.
Skills and tools
Architect & Interior Designer
Architect

AutoCAD

Autodesk 3ds Max
Industries