
2D technical plan For your space!
Contact for pricing
About this service
Summary
What's included
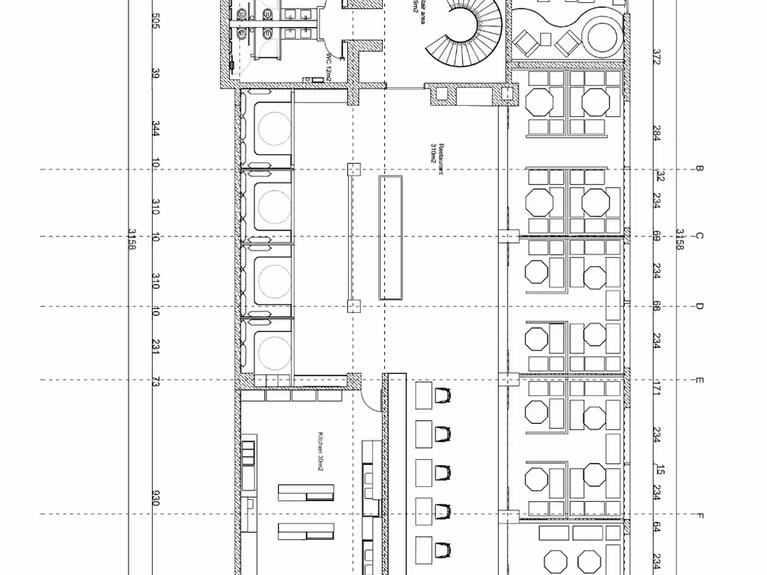
Detailed Floor Plans
Dimensioned Plans: Accurate floor plans showing layout, room sizes, and key elements like doors, windows, and walls. Furniture Layout: A clear plan showcasing the furniture arrangement for optimal space utilization.
Elevations
Interior and Exterior Elevations: Scaled views of walls and facades with detailed dimensions and material notes.
Sections
Cross-Section Drawings: Vertical cuts through the building to illustrate internal layouts and structural elements.
Detail Drawings
Construction Details: Zoomed-in technical drawings of specific components like joinery, staircases, or custom furniture. Material and Fixture Details: Information about materials, finishes, and hardware.
Doors and Windows Schedules
Specifications: A list of all doors and windows with dimensions, materials, and opening directions
Client Feedback Revisions
Revised Drawings: Updates based on client feedback, typically allowing for 2 rounds of revisions.
Skills and tools
3D Designer
Architect
3D Modeler

Archicad

Autodesk 3ds Max

Blender

SketchUp

SolidWorks
Industries