
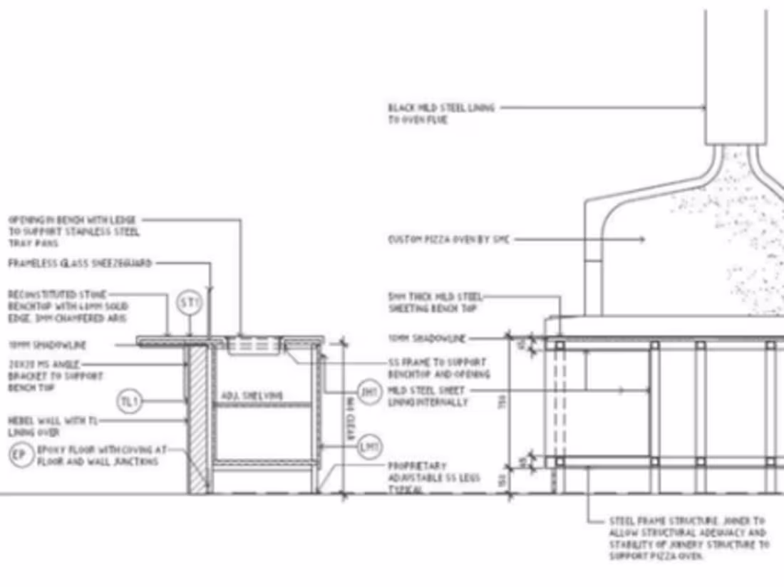
Joinery Detailing & Schedule of Works
Starting at
$
40
/hrAbout this service
Summary
What's included
Joinery detailing and comprehensive schedule of works
- Joinery plan and detailing - Finishes, fixtures and specifications schedule
Skills and tools
Architect & Interior Designer

Archicad

AutoCAD

Revit
Industries